1. Accueil
  2. Achat
  3. Achat Appartement
  4. Achat Appartement LA VARENNE ST HILAIRE (94210)

Appartement F4 à vendre 4 pièces - 118,77 m2 LA VARENNE ST HILAIRE - 94

Ref : 1768

1 250 000 €

  • Honoraires charge vendeur
Appartement F4 à vendre - 4 pièces - 118,77 m2 - La Varenne St Hilaire - 94 - ILE-DE-FRANCE
Appartement F4 à vendre - 4 pièces - 118,77 m2 - La Varenne St Hilaire - 94 - ILE-DE-FRANCE
Appartement F4 à vendre - 4 pièces - 118,77 m2 - La Varenne St Hilaire - 94 - ILE-DE-FRANCE
Envoyer un message
Message
Envoyer ce bien à un ami

Description

EMPLACEMENT TRÈS RECHERCHÉ DANS LE TRIANGLE D'OR DE LA VARENNE
À 650 m du RER A, 300 m des commerces et 750 m des écoles, venez découvrir la Résidence Imagine Monniot, une adresse d'exception située dans un environnement calme et privilégié.
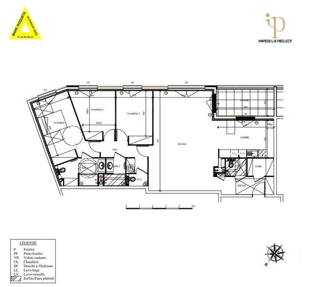
Au sein d'une résidence de grand standing avec ascenseur, cet appartement 4 pièces, situé en étage, offre une surface habitable de 118,77 m² et une surface totale de 131,47 m². Il se compose d'une entrée avec placards, d'un séjour lumineux ouvrant sur une loggia de 12,7 m², d'une cuisine, d'une suite parentale avec salle d'eau et WC, ainsi que de deux autres suites parentales avec salle d'eau. L'appartement dispose également de WC indépendants et de nombreux rangements.
En annexe : un box en sous-sol avec accès sécurisé.
Prestations haut de gamme dans un cadre paisible.
D'autres appartements sont également disponibles au sein de la résidence. N'hésitez pas à nous contacter pour plus d'informations !

Localisation

Laissez-nous vos coordonnées pour obtenir la localisation

Envoyer

Afficher sur la carte :

Demander la localisation

Vue globale

  • Surface totale : 131,5 m2
  • Surface habitable : 118,8 m2
  • Type d'appartement : F4
  • Étage : 1er
  • Nombre de pièces : 4
    • Entrée (5,2 m2)
    • Séjour (32,7 m2)
    • Cuisine (10,4 m2)
    • Chambre (18,2 m2)
    • Salle d'eau (7,4 m2)
    • Chambre 2 (15,2 m2)
    • Salle d'eau (3,7 m2)
    • Chambre 3 (12,7 m2)
    • Salle d'eau (7,0 m2)
    • WC (2,3 m2)
    • Dégagement (4,0 m2)
    • Terrasse (12,7 m2)
  • Type de construction : Traditionnelle
  • Année construction : 2025

Équipements

Les plus

P

Box ferme

Terrasse

Général

  • Box ferme : 1 place(s)
  • WC séparés
  • Chauffage : Individuel climatiseur réversible electricité
  • Eau chaude : Ballon électrique
  • Toiture : Terrasse
  • Ascenseur
  • Interphone
  • Videophone

À savoir

  • Charges / mois : 238 €

Pour consulter les barèmes d'honoraires de l'agence, cliquez ici

Les informations sur les risques auxquels ce bien est exposé sont disponibles sur le site Géorisques :

Copropriété

  • Nombre de Lots : 24
  • Charges courantes par an : 2856,0 €
  • Pas de procédure en cours

Les performances énergétiques

Non soumis au DPE
Bien proposé par Hugo desgue EI, agent commercial (RSAC 838179372)

Ce bien est proposé par l'agence CENTURY 21 Immo Bac

CENTURY 21 Immo Bac

CENTURY 21 Immo Bac

111/115 avenue du Bac

94210 LA VARENNE ST HILAIRE

01 48 75 01 01
qualitelis Votre agence est notée
Achat Vente
9,5/10

Nos offres

Notre agence immobilière à La varenne st hilaire vous propose :

Calculer vos mensualités
de remboursement

Montant du prêt :
Durée du crédit
Taux d'intérêt (hors assurances)

vos mensualités

- € par mois

(Dont -€ d’assurances)

Crédit immobilier simulation
et premiers calculs

vous êtes acquéreur et vendeur,

Vous êtes acquéreur et vendeur, nos agents immobiliers peuvent vous accompagner dans vos projets

Contacter l'agence

Envoyer à un ami

Envoyer

Créer votre alerte

Rappel de vos critères de recherche :

Erreur dans les critères envoyés

Limite d'alertes atteinte

Cette alerte existe déjà

Cette alerte est déjà enregistrée pour cette adresse email. Vous continuerez à recevoir les biens correspondant à vos critères.

Une erreur est survenue

Merci de réessayer ultérieurement.

Votre alerte a été créée

Vous recevrez les biens correspondant à vos critères.

logo vente privées

48h

d’avance sur
le marché

Prenez un temps d’avance sur le marché en profitant gratuitement des Ventes Privées CENTURY 21

Si ce n’est déjà fait, allez compléter le profil de votre compte afin de pouvoir recevoir en avant-première des biens exclusifs, réservés à nos clients pendant les 48 premières heures suivant leur commercialisation.

Nos agences proposent régulièrement des biens comme celui que vous cherchez

Ne ratez pas une opportunité, on vous alerte en priorité !

Êtes-vous actuellement propriétaire de votre bien ?
Créer une alerte
Je souhaite être alerté
Voir les biens correspondants

Envoyer un message :

Envoyer